Zeitplan für neue Elsenschule
Die neue Grundschule in der Elsenstraße wird dringend benötigt. Ein erster Zeitplan wurde nun durch den Senat aufgestellt. Bis zur Fertigstellung soll ein Fliegendes Klassenzimmer am Standort Schulplätze bereitstellen.
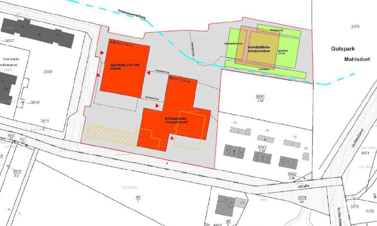
Der zugesagte Modulare Ergänzungsbau zur Schaffung kurzfristiger Schulkapazitäten wurde im letzten Jahr abgesagt. Die Farce um die Fragen der Eignung des Standortes und die letztendliche Absage zog sich über das ganze Jahr 2019. Der Senat hat Dank des gemeinsamen Engagements vor Ort nun die Errichtung einer vierzügigen (4 Klassen je Klassenstufe) Grundschule am Standort Elsenstraße zugesagt.
Das dafür notwendige Bedarfsprogramm soll bis Ende des 1. Quartals 2020 geprüft vorliegen und der Abbruch des Bestandsgebäudes könnte ab August 2020 erfolgen.
Der Abriss und die Errichtung werden durch die Senatsverwaltung für Stadtentwicklung erfolgen. Eine Fertigstellung ist für das Schuljahr 2024/25 vorgesehen.
Um kurzfristig Schulplätze am Standort bereits vor dem Bau der eigentlichen Schule bereitzustellen, sollen auf dem nordöstlichen Teil des Grundstückes fliegende Klassenzimmer entstehen. Diese Aufstellung ist für 3 Schuljahre (2021/22, 2022/23 und 2023/24) geplant. Parallel sollen der Abriss des Bestandsgebäudes und Neubau der Schule erfolgen.
Gemäß aktueller Antwort des Senats fehlen in Kaulsdorf und Mahlsdorf bis zum Schuljahr 2024/25 fast drei Züge an den hiesigen Grundschulen. Erst 2024/25 soll laut Senat mit der Fertigstellung der Schule an der Elsenstraße eine Entlastung erfolgen. Wir müssen hier gemeinsam dafür eintreten, dass bis dahin die geforderten provisorischen Maßnahmen wie die Fliegenden Klassenzimmer am Lehnitzplatz und an der Elsenstraße schnellstmöglich umgesetzt werden und beim Neubau der Grundschule zu keinen weiteren Verzögerungen kommt.
Antworten des Senats zum Schulstandort Elsenstraße
Schreibe einen Kommentar